Trilocale in vendita

Napoli, Rampe San Marcellino - Duomo
€ 148.000
3 locali 3 locali
120 Mq 120 Mq
2 bagni 2 bagni

Trilocale in vendita

Napoli, Rampe San Marcellino - Duomo

Descrizione annuncio

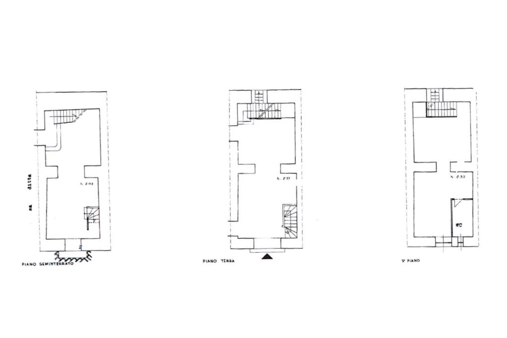
Proponiamo in vendita un immobile situato in una delle zone più storiche e rinomate della città di Napoli, RAMPE DI SAN MARCELLINO. Lungo il Corso Umberto I, nel tratto che, partendo da Piazza Borsa, si avvicina a Piazza Nicola Amore, nota anche come 'Quattro Palazzi'. Questo edificio si distingue tra i tetti affollati del quartiere Pendino per la sua grande cupola, appartenente alla Chiesa dei Santi Marcellino e Festo. Attualmente, la proprietà è locata a 9.600 annui con un contratto ad uso transitorio valido fino a ottobre 2026. Si tratta di una soluzione indipendente che presenta un ingresso al piano terra, dove si trova una cucina abitabile e una camera. Al primo piano, sono presenti due camere da letto e un bagno. Inoltre, dall'interno dell'abitazione è possibile accedere a un seminterrato che ospita altre due camere da letto.

Mostra tutto

Nelle vicinanze

Trasporto pubblico Trasporto pubblico
Università
Università
490 m
Dante
Dante
740 m
Napoli Porta Nolana
Napoli Porta Nolana
900 m
Napoli Piazza Cavour
Napoli Piazza Cavour
950 m
Trasporto pubblico
310 m
Ricariche auto elettriche Ricariche auto elettriche
EnelX EVA+ Ferraris Napoli
1,8 Km
Scuole Scuole
ISIS "Elena di Savoia"
90 m
Università "Federico II" - DiSTAR
90 m
Università "Federico II" - Dipartimento di Scienze Politiche
100 m
Scuole
120 m
Università "Federico II"
150 m
Farmacia Farmacia
Farmacia
120 m
Farmacia San Francesco
120 m
Farmacia Mezzocannone
320 m
Farmacia Carratueo
460 m
Parafarmacia
470 m
Ospedali Ospedali
Presidio Ospedaliero Card.Ascalesi
570 m
Università SUN - Policlinico
610 m
ex Ospedale della Pace (Comune di Napoli - Municipalità IV)
620 m
Università SUN - Poliambulatorio
690 m
Presidio Ospedaliero "SS.Annunziata"
730 m
Supermercati Supermercati
Conad
90 m
Gran Gusto
380 m
Supermercati
560 m
naturasi bio per vocazione
560 m
Superò
670 m
Negozi Negozi
Genius
100 m
Sandro Ferrone
110 m
Fac Love
110 m
Hope
130 m
Weekend MaxMara
130 m
Bar Bar
Zambardino
100 m
Bar Zambardino
110 m
Buco pertuso
150 m
Tappo
250 m
Nilo
260 m
Ristoranti Ristoranti
La Locanda Gesu Vecchio
140 m
Napoli - Amore e sapore
190 m
Dolce Vita
200 m
Vesi
240 m
Tandem Ragù
240 m
Mostra tutto

Caratteristiche

Rif.:
61140846
Piano:
1 di 2 (Piano ammezzato)
Camere da letto:
2
Arredamento:
Assente
Condizionamento:
Autonomo
Ascensore:
No
Mostra tutto
Prezzo Prezzo
€ 148.000
Rata mutuo Rata mutuo
€ 697 / mese
Spese annue Spese annue
€ 200
Proponi il tuo prezzoProponi il tuo prezzo

Classe Energetica

G
G
G
G
G
G
G
G
G
EP globale non rinnovabile:
175.00 kW h/m² anno
EP globale rinnovabile:
175.00 kW h/m² anno
EP invernale del fabbricato:
EP estiva del fabbricato:
Anno di costruzione:
1700
Riscaldamento:
Autonomo
Tipo impianto:
A radiatori
Tipo alimentazione:
Metano

Ti interessa visionare l'immobile?

Fissa un appuntamento  Fissa un appuntamento

Richiedi informazioni

Clicca su Leggi per aprire l'informativa
* Questi campi sono obbligatori

Calcola il tuo mutuo

Semplice e senza impegno
Anticipo

( % )
Mutuo

( % )

pochi semplici passi

inserisci i tuoi dati
Questionario completato
Grazie per aver richiesto un appuntamento senza impegno con un nostro Consulente del Credito e Assicurativo.

Hai inserito correttamente tutti i dati necessari e a breve riceverai una e-mail con un link da convalidare per inviare i tuoi dati.
Affiliato
Venere Immobiliare Srl
Via Duomo, 199 80138 Napoli (NA)
Via Duomo, 199 80138 Napoli (NA)
Zona: Napoli Centro Storico
Mostra su mappa
Orari: Lunedì - Venerdì dalle 9.00 alle 20.00; Sabato dalle 9.00 alle 18.00 ; Domenica su appuntamento
Affiliato
Venere Immobiliare Srl
Via Duomo, 199 80138 Napoli (NA)

2026 Tecnocasa Franchising S.p.A. - P. IVA 08365160152 - Via Monte Bianco 60/A 20089 Rozzano (MI). Ogni agenzia ha un proprio titolare ed è autonoma. Privacy policy | Policy utilizzo | Cookie policy