Multilocale in vendita

Napoli, Via Nilo
€ 477.000
6 locali 6 locali
235 Mq 235 Mq
1 bagno 1 bagno

Multilocale in vendita

Napoli, Via Nilo

Descrizione annuncio

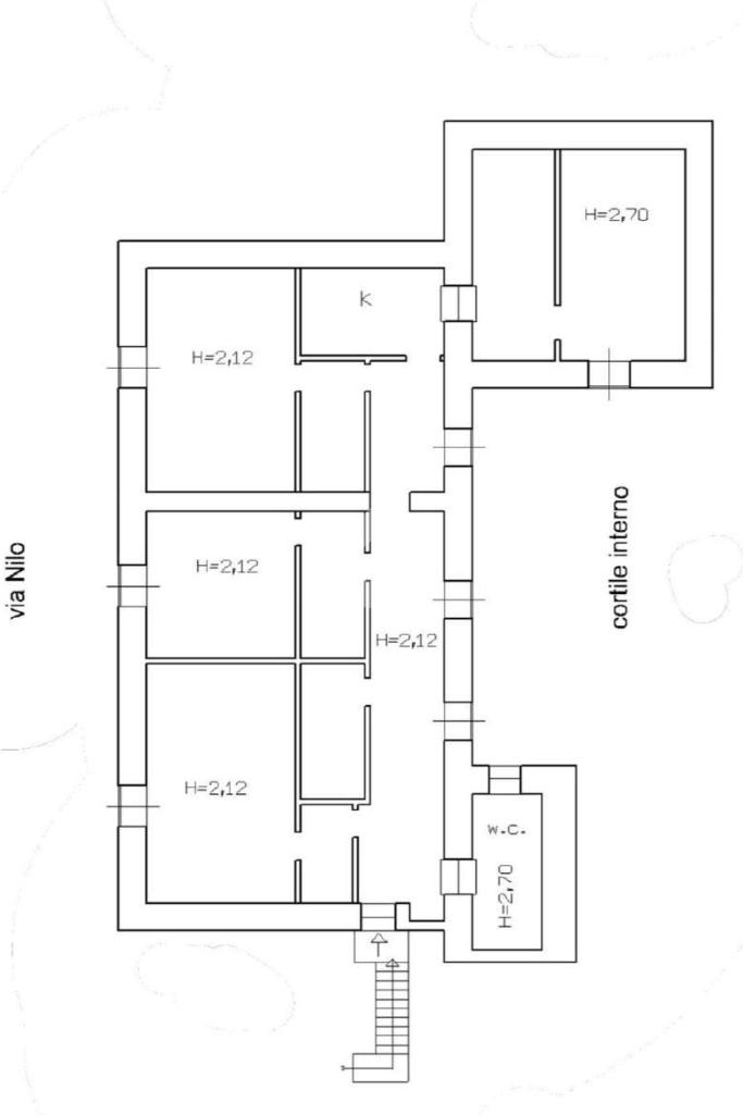
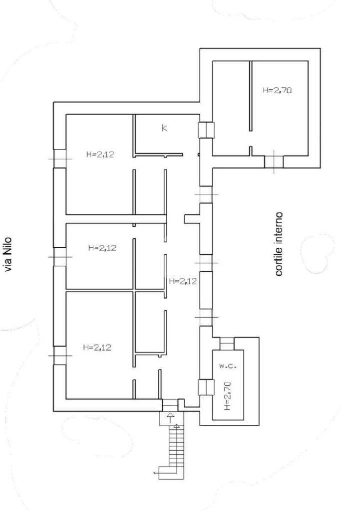
Nel cuore del centro storico di Napoli, in una delle strade più caratteristiche e ricercate della città, precisamente in Via Nilo, proponiamo in vendita un ampio appartamento di circa 200 mq, situato al quinto piano di un palazzo storico signorile in buone condizioni.

La posizione è centralissima e fortemente turistica, a pochi passi da alcune delle vie più famose della città come Via San Biagio dei Librai (Spaccanapoli), Via Benedetto Croce, Piazza San Domenico Maggiore e Via Mezzocannone, zone ricche di attività, università, monumenti e grande afflusso turistico durante tutto l’anno.

L’immobile è composto da: ingresso in disimpegno, 4 camere, 3 cucine, 2 ulteriori camere di servizio, 1 bagno e 7 balconi alla romana con affaccio interno panoramico, che rendono la soluzione molto luminosa e tranquilla, con possibilità di posto auto.

Grazie alla generosa quadratura e alla distribuzione degli ambienti, l’appartamento rappresenta una soluzione ideale per uso investimento, con la possibilità di ricavare più monolocali o unità indipendenti, ma si presta perfettamente anche come ampia abitazione privata nel pieno centro storico.

L’immobile è da ristrutturare, offrendo la possibilità di ridisegnare e personalizzare gli spazi secondo le proprie esigenze.

Ottima opportunità di investimento in una delle zone più richieste, centrali e turistiche di Napoli.

Mostra tutto

Nelle vicinanze

Trasporto pubblico Trasporto pubblico
Dante
Dante
490 m
Università
Università
580 m
Napoli Piazza Cavour
Napoli Piazza Cavour
730 m
Montesanto
Montesanto
910 m
Trasporto pubblico
560 m
Ricariche auto elettriche Ricariche auto elettriche
EnelX EVA+ Ferraris Napoli
2,1 Km
Scuole Scuole
Scuole
60 m
Istituto Universitario Orientale - Palazzo Saluzzo di Corigliano
80 m
Scuole
120 m
Università "Federico II"
130 m
Università "Federico II" - Plesso Mezzocannone 16
140 m
Farmacia Farmacia
Farmacia
70 m
Farmacia Carratueo
260 m
Farmacia San Francesco
410 m
Farmacia Istituto Omeopatico delle dottoresse Certosino e Luise
460 m
Farmacia Mezzocannone
480 m
Ospedali Ospedali
Università SUN - Policlinico
330 m
Università SUN - Poliambulatorio
410 m
Ospedali
560 m
Ospedale Santa Maria degli Incurabili
580 m
Ospedale Santa Maria del Popolo degli Incurabili
600 m
Supermercati Supermercati
Conad
370 m
Gran Gusto
580 m
Superò
610 m
naturasi bio per vocazione
610 m
Supermercati Superò Sma
610 m
Negozi Negozi
San Gennaro
110 m
Scaturchio
120 m
Leopoldo
140 m
Carrefour Express
200 m
Negozi
200 m
Bar Bar
Museum Shop & Bar
10 m
Shanti
30 m
Vineria Stuzzicheria
30 m
Nilo
40 m
Donna Romita
70 m
Ristoranti Ristoranti
Pizzeria dell'Angelo
30 m
La Cantina del Sole
30 m
Tandem Ragù
60 m
O Cerriglio
80 m
Vesi
110 m
Mostra tutto

Caratteristiche

Rif.:
61190575
Piano:
5 di 5 con ascensore (ultimo Piano)
Balconi:
7
Camere da letto:
4
Arredamento:
Assente
Condizionamento:
Assente
Mostra tutto
Prezzo Prezzo
€ 477.000
Rata mutuo Rata mutuo
€ 2.266 / mese
Spese annue Spese annue
€ 400
Proponi il tuo prezzoProponi il tuo prezzo

Classe Energetica

G
G
G
G
G
G
G
G
G
EP globale non rinnovabile:
175.00 kW h/m² anno
EP globale rinnovabile:
175.00 kW h/m² anno
EP invernale del fabbricato:
EP estiva del fabbricato:
Anno di costruzione:
1600
Riscaldamento:
Assente

Ti interessa visionare l'immobile?

Fissa un appuntamento  Fissa un appuntamento

Richiedi informazioni

Clicca su Leggi per aprire l'informativa
* Questi campi sono obbligatori

Calcola il tuo mutuo

Semplice e senza impegno
Anticipo

( % )
Mutuo

( % )

pochi semplici passi

inserisci i tuoi dati
Questionario completato
Grazie per aver richiesto un appuntamento senza impegno con un nostro Consulente del Credito e Assicurativo.

Hai inserito correttamente tutti i dati necessari e a breve riceverai una e-mail con un link da convalidare per inviare i tuoi dati.
Affiliato
Venere Immobiliare Srl
Via Duomo, 199 80138 Napoli (NA)

Il nostro staff


  • Giovanni Reale
    Responsabile
Via Duomo, 199 80138 Napoli (NA)
Zona: Napoli Centro Storico
Mostra su mappa
Orari: Lunedì - Venerdì dalle 9.00 alle 20.00; Sabato dalle 9.00 alle 18.00 ; Domenica su appuntamento
Affiliato
Venere Immobiliare Srl
Via Duomo, 199 80138 Napoli (NA)

2026 Tecnocasa Franchising S.p.A. - P. IVA 08365160152 - Via Monte Bianco 60/A 20089 Rozzano (MI). Ogni agenzia ha un proprio titolare ed è autonoma. Privacy policy | Policy utilizzo | Cookie policy